
Pozicija
III SPRAT
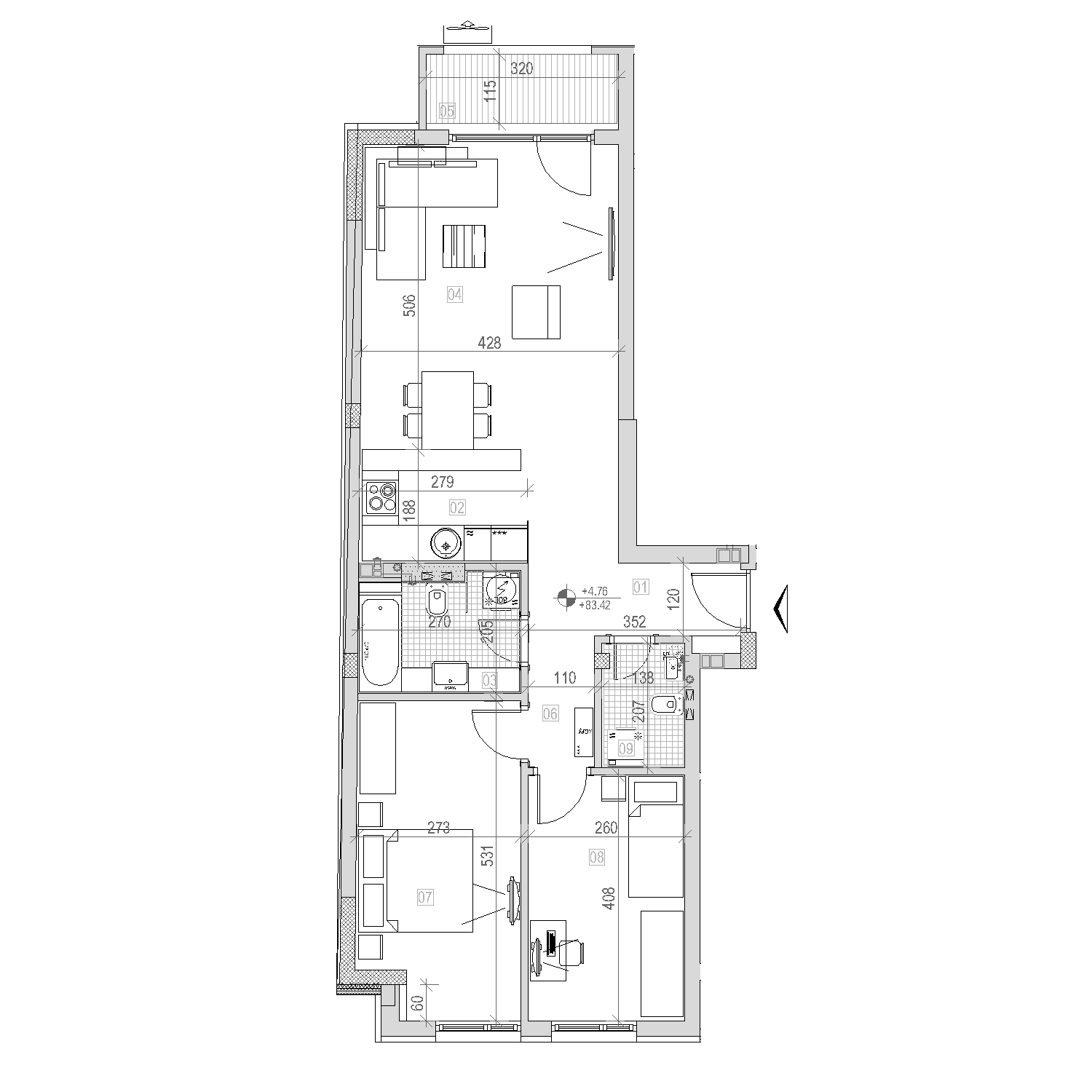
Trosoban
Br. Prostorija Površina / m2
01 ULAZ 4,47
02 KUHINJA 4,25
03 KUPATILO 5,22
04 DNEVNA SOBA 25,41
05 LOĐA 3,65
06 DEGAŽMAN 2,39
07 SPAVAĆA SOBA 13,83
08 SPAVAĆA SOBA 10,62
09 TOALET 2,79
Zbirna kvadratura jedinice
72,64m2
Pozicija unutar objekta
Dvostrana orijentacija

Osnova jedinice

C
CENA
KONTAKT
K
Kupovina
G
Galerija
Naredna
Prethodna
Dodatna dokumentacija
Dokument
Link
