
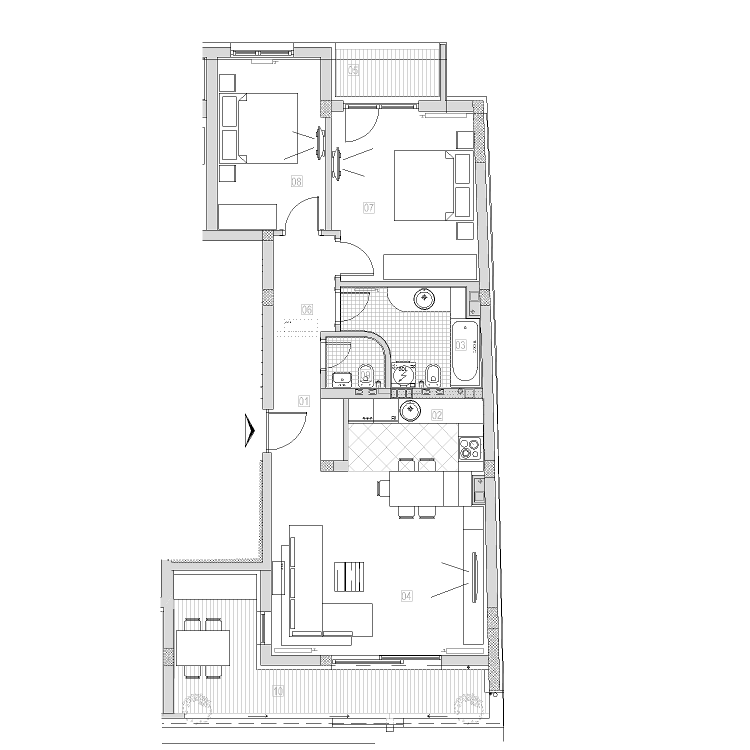
Pozicija
POTKROVLJE
Trosoban
Br. Prostorija Površina / m2
01 ULAZ 4,34
02 KUHINJA 5,69
03 KUPATILO 6,59
04 DNEVNA SOBA 23,20
05 LOĐA 2,89
06 DEGAŽMAN 3,50
07 SPAVAĆA SOBA 10,78
08 SPAVAĆA SOBA 14,16
09 WC 1,75
10 TERASA 13,23
Zbirna kvadratura jedinice
86,07m2
Pozicija unutar objekta
Dvostrana orijentacija

Osnova jedinice

C
CENA
KONTAKT
K
Kupovina
