
Pozicija
Prizemlje
Lokal
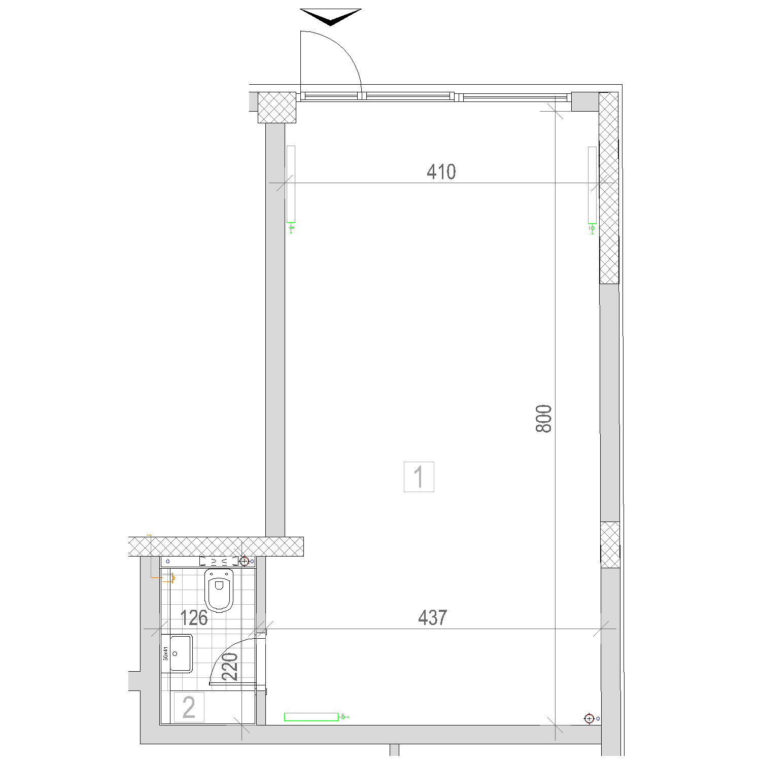
Br. Prostorija Površina / m2
1 LOKAL 33,39
2 TOALET 2,78
Zbirna kvadratura jedinice
36,17m2
Pozicija unutar objekta
Ulična orijentacija

Osnova jedinice

C
CENA
KONTAKT
K
Kupovina
Dodatna dokumentacija
Dokument
Link
