
Pozicija
Potkrovlje
Garsonjera
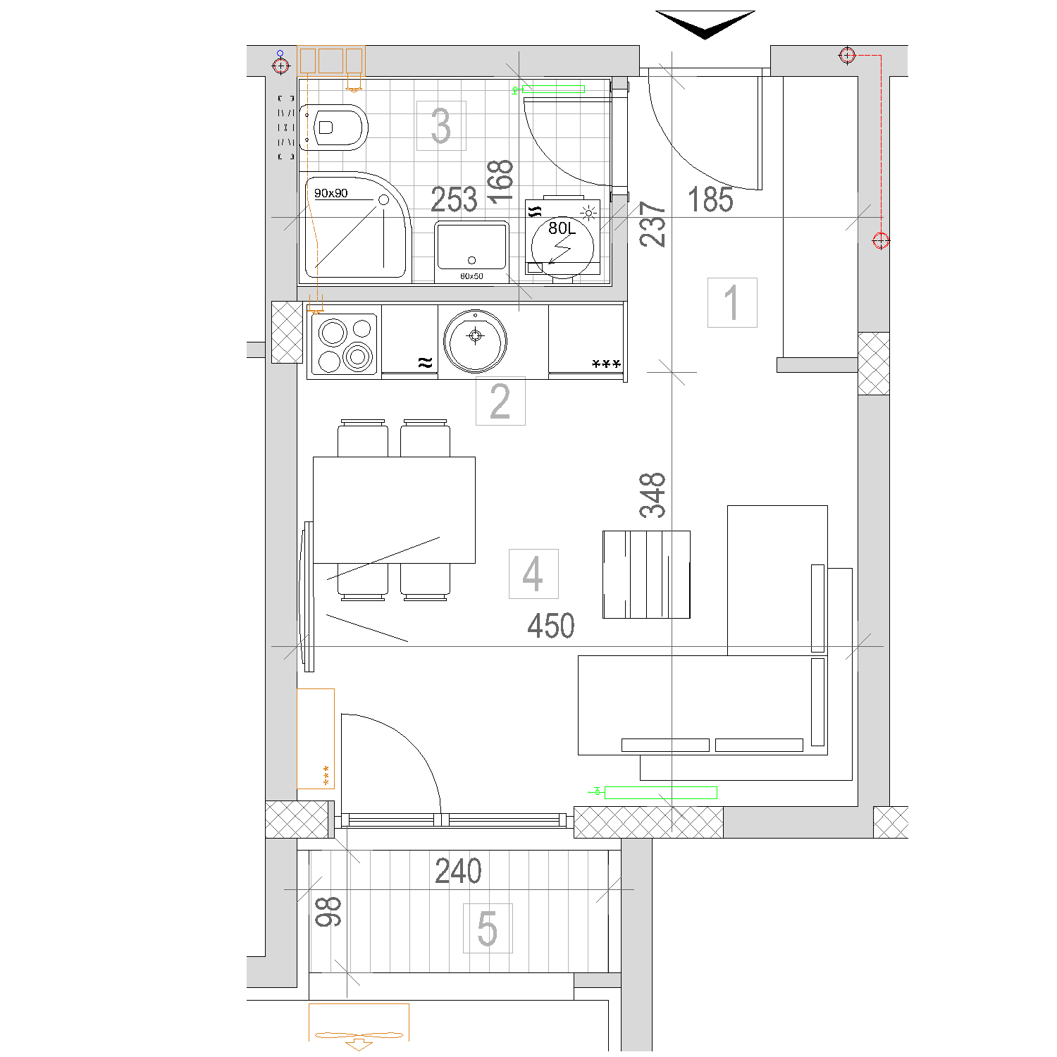
Br. Prostorija Površina / m2
1 ULAZ 4,28
2 KUHINJA 1,60
3 KUPATILO 4,25
4 DN.SOBA 15,48
5 LOĐA 2,35
Zbirna kvadratura jedinice
27,96m2
Pozicija unutar objekta
Dvorišna orijentacija

Osnova jedinice

C
CENA
KONTAKT
K
Kupovina
Dodatna dokumentacija
Dokument
Link
