
Pozicija
Potkrovlje
Petosoban
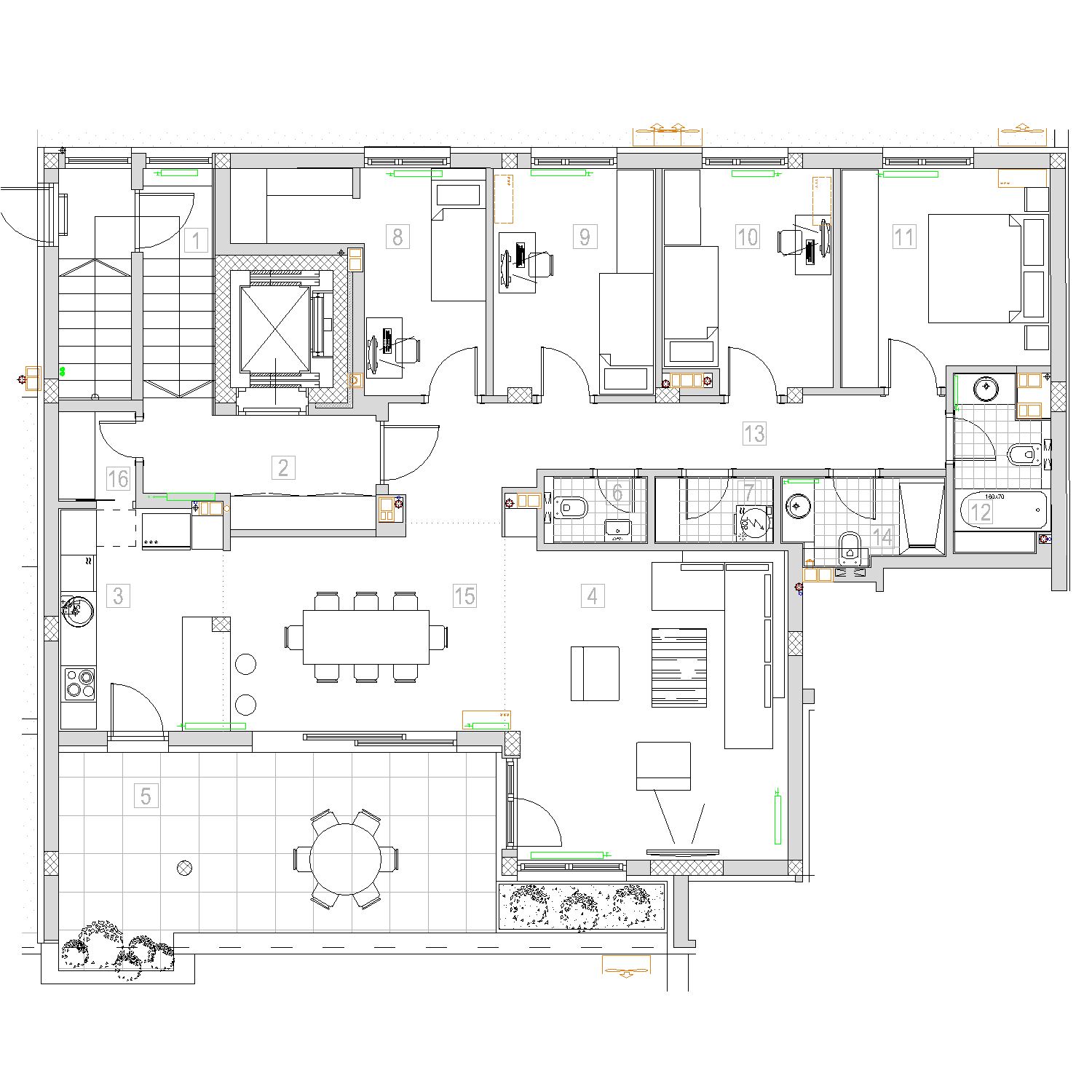
Br. Prostorija Površina / m2
1 ULAZ 4,70
2 HODNIK 6,48
3 KUHINJA 10,02
4 DN.SOBA 23,98
5 LOĐA 21,79
6 TOALET 1,90
7 VEŠERAJ 2,20
8 SP.SOBA 10,41
9 SP.SOBA 10,08
10 SP.SOBA 10,18
11 SP.SOBA 12,12
12 KUPATILO 4,35
13 DEGAŽMAN 12,24
14 KUPATILO 3,77
15 TRPEZARIJA 15,29
16 OSTAVA 1,89
Zbirna kvadratura jedinice
151,42m2
Pozicija unutar objekta
Dvostrana orijentacija

Osnova jedinice

C
CENA
KONTAKT
K
Kupovina
